Ya está disponible el acta de la reunión del pasado 27 de abril de 2026, la número...
Convocatoria de reunión nº 2 de la Asociación de Vecinos Picanya Sud para todos sus asociados.


1 min de lectura
El próximo día 27/04/2026 lunes, a las 20:30 h, EN EL CENTRO CULTURAL DE PICANYA, sito en...
Publicada en «Las provincias» un resumen de alegaciones realizadas por la Asociación Vecinal Picanya Sud.


1 min de lectura
Ayer, 14 de enero de 2026, en el periódico Las Provincias, el periodista Paco Moreno, publicó un...
Finalizados los tramites y las gestiones de constitución de la Asociación Vecinal Picanya Sud, recientemente hemos abierto...
Propuesta de flyer para iniciar la publicidad y captación de asociados entre los vecinos de Picanya Sud


1 min de lectura
Comenzamos…..y esto es solo el principio y un «pequeño ejemplo»… Agradecemos opiniones, por favor, opinad sin cortapisas....
Disponible la Convocatoria y Acta de la 1ª reunión de la Junta Directiva de la Asociación Vecinal del 2026


1 min de lectura
Ya es posible consultar en la opción del menú Junta Directiva, Actas, la correspondiente a la reunión...
Mañana dia 8 de enero finaliza el plazo de presentación de alegaciones a la modificación puntual del...
Disponible Convocatoria y Acta de reunión del dia 30 de noviembre de la Junta Directiva de la Asociación vecinal


1 min de lectura
Ya está disponible y consultable en la opción del menú Juntas Directivas el Acta de la 3ª...
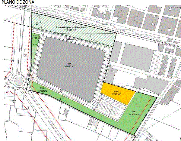
Publicado en el DOGV la exposición al público de la modificación puntual nº 25 del PGOU de Picanya.
1 min de lectura
Se ha publicado en el Diario Oficial de la Generalitat Valenciana (num 10231 de fecha 05-11-2025) la...
Ya es posible consultar en la opción del menú Junta Directiva, Actas, la correspondiente a la reunión...
















